Meklēt

Īpašuma veids

Atrašanās vieta

Cena

Platība

Istabu skaits

Citi

Kredīta kalkulators

Pirmā iemaksa
Ikmēneša maksājums
Birojs
690 000 €

Āgenskalns, Kalnciema iela 41A, Latvija

1 513,16 EUR/m2

Istabu skaits: 34

Platība: 456.0 m2

Ēkas tips:

Sērija:

Lifts: Nav

Balkons: Ir

Papildinformācija

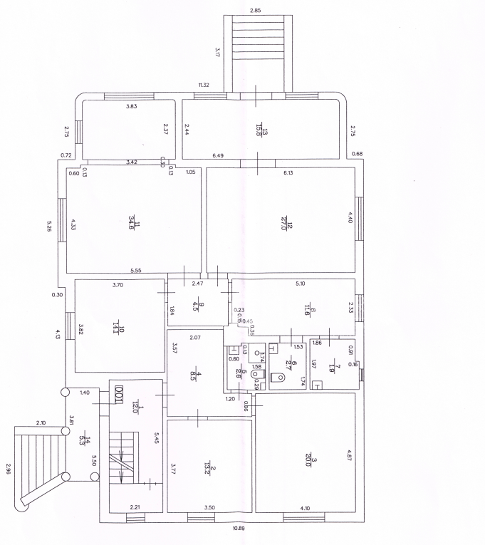
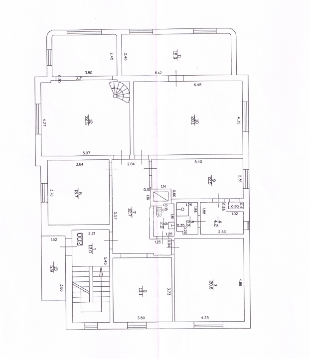
Pārdodas biroja ēka Kalnciema ielā 41A.

Uz zemes gabala 1999m2 platībā atrodas biroja ēka 456m2 platībā.

Ēkas apraksts:

  1. Ēka sastāv no trīs stāviem ar 34 telpām, terasi un balkonu.

Pirmais stāvs – 11 telpas, 2 sanmezgli un terase.

Otrais stāvs – 11 telpas, 1 vannas istaba un balkons.

Trešais stāvs – 1 telpa.

Cokolstāvā – 8 istabas, pirts, vannas istaba, siltummezgls, pagrabs.

     2. Dažās telpās nepieciešams kosmētiskais remonts.
     3. Gāzes apkure.

Līdz Rīgas centram var nokļūst 10 minūtēs ar transportu, 5 minūtēs ar mašīnu.

Īpašums atrodas uz vienas no pilsētas galvenām ielām pārdaugavā ar ļoti lielu auto plūsmu, blakus ir sabiedriskā transporta pieturas, veikali, skolas, medicīnas centri, aptiekas, bankas. Jūrmala atrodas 20 minūšu automašīnas brauciena attālumā.

Šis īpašums ir labs investīciju piedāvājums.

Zvaniet, nāciet apskatīties, ar prieku atrādīsim īpašumu.

Karīna Dovhenko

Nekustamo īpašumu konsultants

+371 24502213

karina@codoreal.com

 

Visi aģenta piedāvājumi

Papildinformācija

Pārdodas biroja ēka Kalnciema ielā 41A.

Uz zemes gabala 1999m2 platībā atrodas biroja ēka 456m2 platībā.

Ēkas apraksts:

  1. Ēka sastāv no trīs stāviem ar 34 telpām, terasi un balkonu.

Pirmais stāvs – 11 telpas, 2 sanmezgli un terase.

Otrais stāvs – 11 telpas, 1 vannas istaba un balkons.

Trešais stāvs – 1 telpa.

Cokolstāvā – 8 istabas, pirts, vannas istaba, siltummezgls, pagrabs.

     2. Dažās telpās nepieciešams kosmētiskais remonts.
     3. Gāzes apkure.

Līdz Rīgas centram var nokļūst 10 minūtēs ar transportu, 5 minūtēs ar mašīnu.

Īpašums atrodas uz vienas no pilsētas galvenām ielām pārdaugavā ar ļoti lielu auto plūsmu, blakus ir sabiedriskā transporta pieturas, veikali, skolas, medicīnas centri, aptiekas, bankas. Jūrmala atrodas 20 minūšu automašīnas brauciena attālumā.

Šis īpašums ir labs investīciju piedāvājums.

Zvaniet, nāciet apskatīties, ar prieku atrādīsim īpašumu.